JS:Architectural
 
   
     
 
 
Commercial Projects
We have the necessary expertise and experience of working on commercial buildings. Our previous projects include dental practices, shops, offices, public houses and veterinary surgeries for works that involved extensions, conversions, new-builds and fit-outs. Our pragmatic and common-sense approach to design ensures clients are delivered building solutions that are properly thought-through, sensible and well grounded.

ciat

JS:Architectural
194 Church Lane
Hucknall
Nottingham
NG15 8DZ

Tel 07976 716973
jason@js-a.co.uk

Jason Smith MCIAT ICIOB Chartered Architectural Technologist

 

Below are examples of our recent projects.

Dental Practice Conversion
for Darren Bywater Ltd

click to see more images

The conversion and extension of an existing residential property to form a new dental practice in Allestree, Derby. The client required a high quality internal fit-out to define the excellence in patient care which was to be provided by the newly established practice. The surgery layout was planned and considered in great detail to ensure its suitability to deliver private, NHS, and specialist implant dentistry.
 
   
   
New Entrance Area for
Lawrence Veterinary Centre

click to see more images

The extension of the existing premises to form a link between two wings of the existing practice to create a new reception, dispensary and waiting area so transforming the customer's visit experience. Works also involved the refurbishment of existing vet consulting rooms, the provision of disabled facilities and the incorporation of animal appropriate finishes.
 
   
   
New-build Dental Practice
for Jordan Dental

click to see more images

The demolition of an existing building and its replacement with a new two storey dental practice in Mansfield, Notts. Built to a demanding budget and programme, the building provides three consulting rooms, office, staff and ancillary areas.
 
   
   
Dental Practice Conversion
for Jordan Dental

click to see more images

The strip and fit-out of an existing retail premise in Arnold, Nottingham to form a new dental practice consisting of two dental consulting rooms, office, staff and ancillary areas.
 
   
   

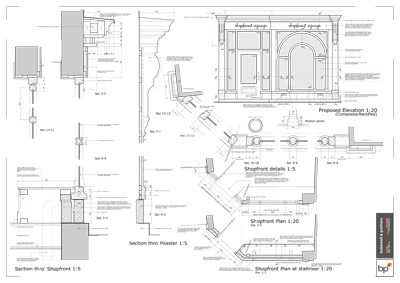
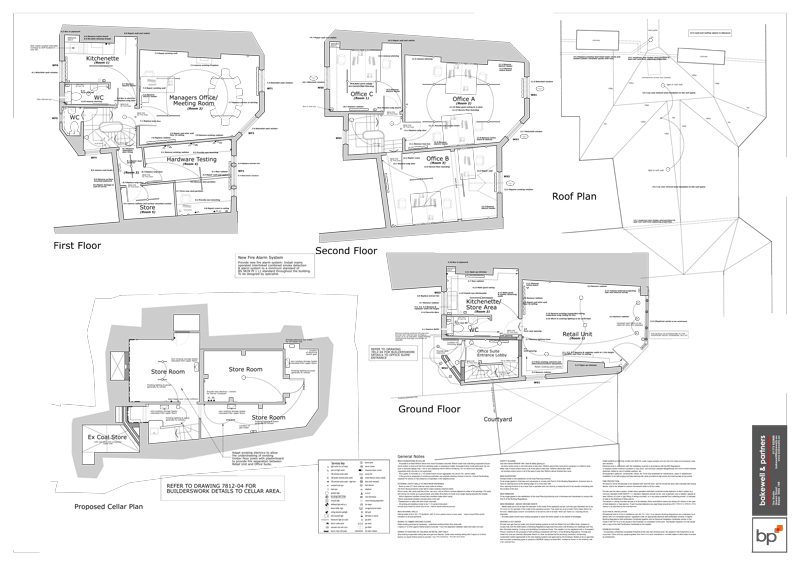
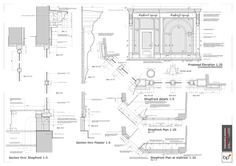
Subdivision of premises to form retail
floorspace & office accommodation

click to see more images

The reconfiguration of an existing four storey shop & office premise to form a separate retail unit to the ground floor with office Suite to the upper floors and basement. The project involved the introduction of a new entrance area serving the office suite at the rear and new shopfront for the retail unit. Works were partially funded by a local authority conservation grant.
 
     
     
 
 
e-mail us at jason@js-a.co.uk
 
 
All site content is © JS:Architectural