JS:Architectural  
   
     
 
 
Conservation Projects
We have developed expertise in conservation projects working on grade II and grade II* buildings throughout the East Midlands on both grant-funded and non grant-funded refurbishment, restoration and conversion projects. We have developed close working relationships with grant project managers and conservation officers and understand the requirements and restrictions that are imposed by these authorities, and the conservation approach, when working on listed and non-listed buildings of historical architectural merit. Included in our portfolio are barn conversions, refurbishments of office buildings, shops, shopfront replacements, and houses. Below are some examples of our recent work.

ciat

JS:Architectural
194 Church Lane
Hucknall
Nottingham
NG15 8DZ

Tel 07976 716973
jason@js-a.co.uk

Jason Smith MCIAT ICIOB Chartered Architectural Technologist

Grant Aided External Refurbishment of
35-36 St. Mary's Gate, Derby

photograph © Martine Hamilton Knight. click to see more images

The external refurbishment of a grade II* listed former georgian town house in Derby's Cathedral Quarter. Works were carried out in close liaison with Derby City Council’s conservation team and funding assistance was provided via a significant grant from the Derby English Heritage Partnership Scheme.

 
   
   
Grant Aided External Refurbishment of
19-20 Sadler Gate, Derby

photograph © Martine Hamilton Knight. click to see more images

The external refurbishment of a grade II listed building dating from the eighteenth Century located in the Cathedral Quarter of Derby. The building consists of retail premises to the ground floor and restaurant to the upper storeys. The works were done in close liaison with Derby City Council’s conservation team and funding assistance was provided via grants from the Derby English Heritage Partnership Scheme.
 
   
   
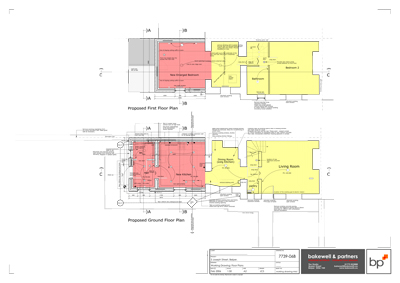
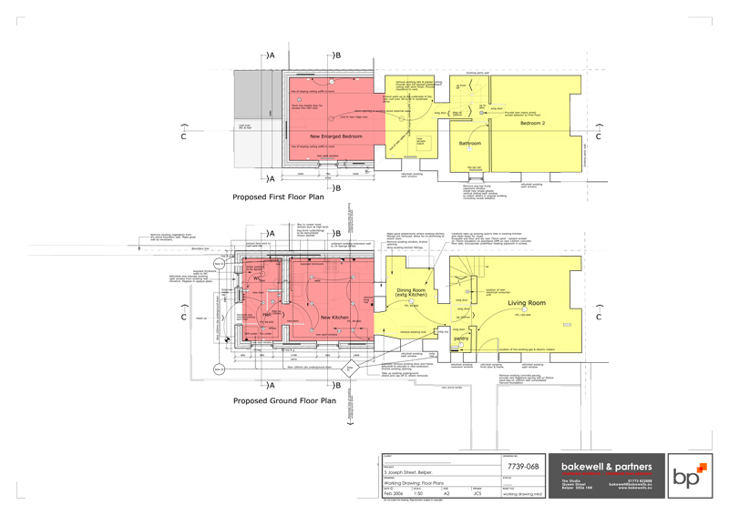
Refurbishment and Extension of
Grade II Listed House in Belper

click to see more images

After securing a grant from the Belper & Milford Townscape Heritage Initiative for roofing, sash window refurbishments, the reinstatement of lost chimneys and the repair of an external pig shed, we prepared and constructed a two storey extension to provide this historically important grade II listed 'clusters' house with additional floorspace in the form of a new kitchen and enlarged bedroom to the first floor.
 
     
     
Refurbishment
of The Black Swan ph

click to see more images

The external repair and refurbishment of this local landmark public house. After successfully negotiating a grant from the Belper & Milford Townscape Heritage Initiative, we project managed works to this historically important building which included the refurbishment of sliding sash windows, removal of external masonry paintwork, slate re-roofing and repointing in lime mortar.
 
   
   
Grant Aided Refurbishment of
21-25 Packers Row, Chesterfield

click to see more images

The external repair and refurbishment of a group of five retail units in Chesterfield town centre. After successfully negotiating a grant from the Chesterfield Townscape Heritage Initiative, we project managed works to this historically important building which included the refurbishment of windows, render repairs, re-roofing and redecorations.
 
     
     
 
 
e-mail us at jason@js-a.co.uk
 
 
All site content is © JS:Architectural