JS:Architectural
 
   
     
 
 
Development Projects

We are able to offer developers an unrivalled architectural service for all types of residential development opportunities including initial site evaluation and feasibility schemes, preparation of development proposals, the securing of planning permissions, detailed design for building regulations purposes and site inspections of construction works. Our expertise ranges from individual garden plot developments for private clients, two, three & four unit housing developments for builder-developers through to larger multi dwelling schemes for larger housing developers.

Below are some examples of recent projects completed.

16 house development
at South Normanton

click to see more images

Scheme for the development of 16 three, four and five bedroom executive detached houses for private property developer, Meadowbrook Homes.

 
   
   
8 house starter housing
development at Kilburn

click to see more images

Development of 8 two bedroomed starter homes with detached garaging consisting of two blocks of 3 semi-detached units and two detached dwellings on a former factory site. Developer Elmtree Homes (Midlands) Ltd.

 
   
   

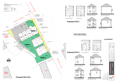
6 house development
at Clowne

click to see more images

Development of three 3 bedroomed and 3 four bedroomed detached dwellings on an abandoned back-land garden plot site made possible by the purchase and demolition of an existing single property.

 
   
   
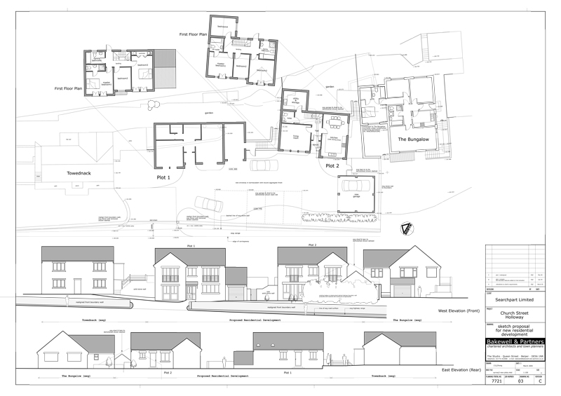
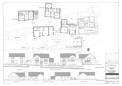
luxury housing development
at Holloway

click to see more images

Development of two detached luxury detached houses on a brown-field site in the desirable location of Holloway, Derbyshire. The development also involved the extension and refurbishment of an existing house located on the site.

 
   
   
3 unit housing development
at South Normanton

click to see more images

Development of 3 detached dwellings on a brown-field site in South Normaton, Derbyshire.

 
   

ciat

JS:Architectural
194 Church Lane
Hucknall
Nottingham
NG15 8DZ

Tel 07976 716973
jason@js-a.co.uk

Jason Smith MCIAT ICIOB Chartered Architectural Technologist

 

 
 
 
e-mail us at jason@js-a.co.uk
 
 
All site content is © JS:Architectural