JS:Architectural
 
   
     
 
 
Housing Projects
We pride ourselves in our ability to offer a sympathetic, pragmatic and well grounded architectural and planning service to domestic clients looking to extend, refurbish, develop or convert their house, site or premise - no matter what size or type. We have expertise in all types of domestic work ranging from single and multiple storey extensions, loft & cellar conversions, interior re-modeling, and barn & outbuilding conversions. We have also developed considerable conservation experience working on sensitive sites and buildings located within the conservation areas of Nottinghamshire & Derbyshire.
Our services to clients include:
  • An initial (cost free) site consultation & appraisal
  • Feasibility studies
  • Design development
  • Attainment of planning permissions
  • Detailed technical design
  • Attainment of building regulations approvals
  • Preparation of tender and contract documentation
  • On-site builder supervision & contract administration

Clients may elect to employ us for some or all of these services. Below are some examples of recent projects completed.

 

 

Glazed link and outbuilding conversion

click to see more images

The conversion of an outbuilding and formation of a glazed sun lounge & link between it and a grade II listed farmhouse. The listed status of the house required a carefully considered solution which respected and preserved the historical characteristics of the house whilst offering the owners an exceptional all-year-round inside/outside space.
 
   
   
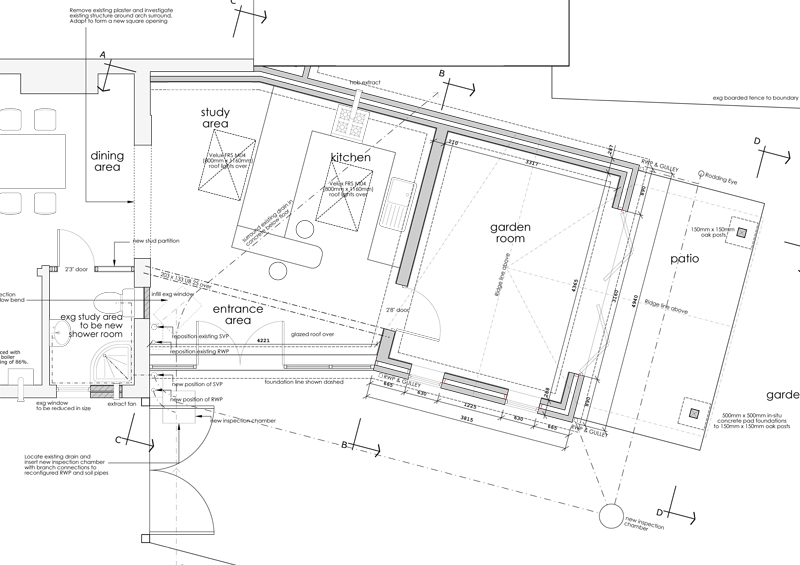
Extension & alterations to house
click to see more images

The extension and internal re-configuration of a large detached house including the provision of a garden room, en-suite bathrooms, kitchen, dining & living areas. The existing windows were reconfigured and some stone surrounds were added and replaced in order to improve the proportions of the external openings so lifting the external appearance.
 
   
   
Cellar conversion
click to see more images

The conversion of a cellar storage area to provide a secondary living space overlooking the garden (on the sloping site) and an additional WC. Works involved the internal waterproofing and finishing of the space and the reconfiguration of the dining & kitchen areas over to accommodate the new staircase.
 
   
 
Rear extension to house

click to see more images

The construction of a single storey extension to provide an enlarged kitchen space and garden room. The form of the structures were carefully considered and designed to improve the transition from house to garden on this awkwardly shaped plot.

 
   
 
Garage conversion
click to see more images

The conversion of a redundant integral garage and re-arrangement of the ground floor area to provide additional internal useable space in a more successful configuration.
 
   
 
New-build house
click to see more images

The demolition of an existing bungalow and it's replacement with a new three storey split-level house which both respects and sits comfortably alongside the adjacent buildings on this sloping site. A two storey glazed bay to the rear provides attractive garden views and single storey bay windows to the front maintain the rhythm of the street scene.
 
   
 
New-build house

click to see more images

The construction of a new-build three bedroom luxury detached house designed to be able to converted to four bedrooms should there be a future need. A single storey garden room with oak truss and framework provide attractive views to the garden at the rear and a large entrance hall leads on to the quality spaces that flow from it.

 
   
Extension & alterations to house

click to see more images

A two-storey extension to provide additional living space to the ground floor area and a new master bedroom suite to the first floor. Extensive structural intervention allowed internal load-bearing walls to be removed to create a quality open-plan yet appropriately proportioned living, dining and kitchen spaces to the ground floor.

 
   
 
Two-storey house extension

click to see more images

The addition of a two storey extension to an existing house to provide en-suite bathroom facilities to the existing first floor bedrooms and an integral garage at ground floor level.

 
   
 

ciat

JS:Architectural
194 Church Lane
Hucknall
Nottingham
NG15 8DZ

Tel 07976 716973
jason@js-a.co.uk

Jason Smith MCIAT ICIOB Chartered Architectural Technologist

 

 

 
 
e-mail us at jason@js-a.co.uk
 
 
All site content is © JS:Architectural